找回密碼
 註冊
查看: 1228|回覆: 7

雲暉大厦 Winfield Building

 火..   [複製鏈接]
簽到
109

50

主題

672

回帖

100

積分

初級會員

積分
100
發表於 2012-6-25 08:51:27 | 顯示全部樓層 |閱讀模式
本帖最後由 nicholasnick 於 2012-6-25 08:54 編輯

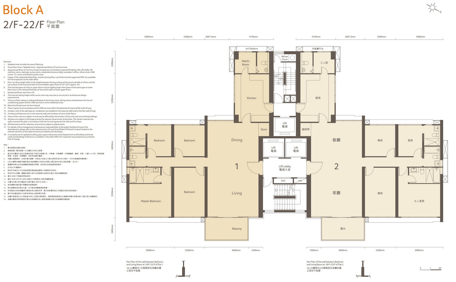
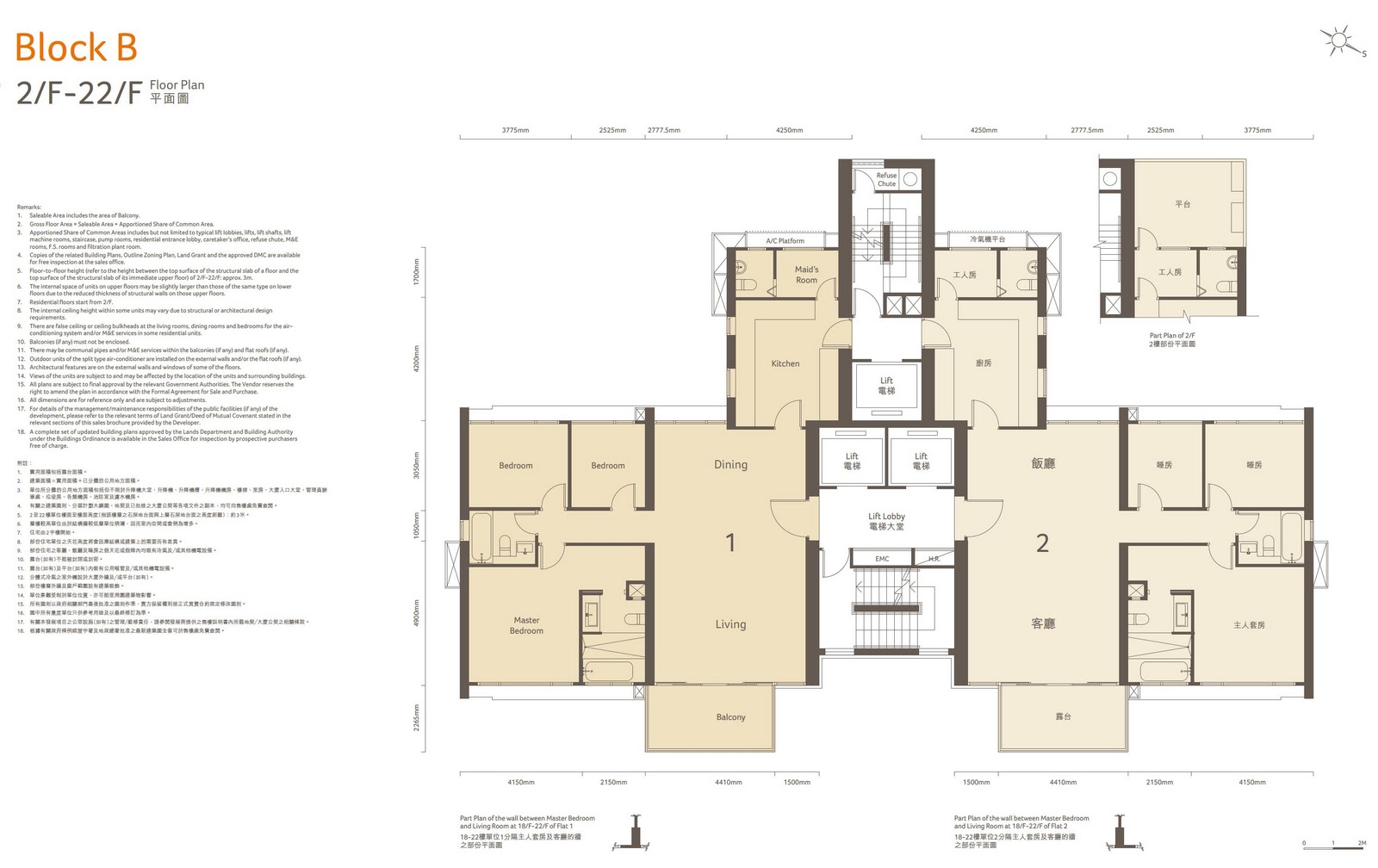
舊廈新裝 - 雲暉大廈

雲暉大廈是上世紀八十年代落成的物業,分A、B和C座,由新鴻基和新城市(世界)聯合發展。當中A、B座就是以前的政府高級公務員宿舍。

建築面積:1,940 平方呎
實用面積:1,567 平方呎
露台:107 平方呎
單位所攤分的公用地方面積:373 平方呎
實用率:80.77%
間隔:三睡房兩廳連主人套房(及工人套房)
Price: Around 27-30M ,  $ 17,407 / 呎     

以上影片乃youtube提供,與本站無關; 若無法觀看,可查看原網址


3.JPG

10.JPG

11.JPG

Personally, I like the floor plan of this development, and one very good thing is, there's No bay windows in the bedrooms! & the balcony ( is like a Terrace-which can fits a table!)  80% 實用 is really hard to find now too.. Even the servant's room has a window-which is quite hard to find now too..

But..I just notice is from a Nam Fung development?!
樂活人生...Even we are coming out to play and paying for the service, but..is always good to be a gentleman

263

主題

1萬

回帖

8萬

積分

星級會員

以得服人...因為我得你唔得

積分
80225

「痴線佬」勳章「天秤座」勳章「生活常識」勳章熱爆勳章勝利勳章141紳士勳章成家立室勳章百萬富翁勳章「友誼大使」勳章高級元老勳章傑出成就勳章超級元老勳章萬千寵愛勳章千億富豪勳章論譠元老勳章

發表於 2012-6-25 12:58:38 | 顯示全部樓層
nicholasnick 發表於 2012-6-25 08:51
舊廈新裝 - 雲暉大廈

雲暉大廈是上世紀八十年代落成的物業,分A、B和C座,由新鴻基和新城市(世界)聯合發展 ...

AB座個則比起C座靚好多, C座個廚房唔好用...., 個飯廳對流又無AB座咁好...  
岩傾就坐埋,唔岩就拜拜!
巧專業架!為左
顯出我係一位上進既會員,會替
解答所有問題,
使你能夠完全咁明白所有可能
略既地方!
回覆 讚好 不讚 使用道具

舉報

50

主題

672

回帖

100

積分

初級會員

積分
100
 樓主| 發表於 2012-6-26 07:03:22 | 顯示全部樓層
本帖最後由 nicholasnick 於 2012-6-26 07:04 編輯
呀吓 發表於 2012-6-25 12:58
AB座個則比起C座靚好多, C座個廚房唔好用...., 個飯廳對流又無AB座咁好...   ...


Yes ar c-hing, AB has a really nice layout and doesn't have a baywindow (it seems C may has it!?). And the balcony is 100 SQ

and even the servant has its own lift =-=?! I guess not many other developement would have this?! I wounder does the lift look very different?! and haha...does it mean the occupier won't travel the servant lift at the reception?! and would wait for its own lift?!!?!
樂活人生...Even we are coming out to play and paying for the service, but..is always good to be a gentleman
回覆 讚好 不讚 使用道具

舉報

50

主題

672

回帖

100

積分

初級會員

積分
100
 樓主| 發表於 2012-6-26 07:09:04 | 顯示全部樓層
本帖最後由 nicholasnick 於 2012-6-26 07:09 編輯
煩惱 發表於 2012-6-25 11:39
整體刀可以喎 .... 而且我中 2 大廚房 ....

但係 c 座有入牆衣櫃就麻麻喇 ....  ...


Even though I haven't been to its actual show flat, but looking at the video, I would rate this at one of the best layout compared to many new development we have now a days ga la c-hing.

No bay window ( Although it may have reflected with the price?), over 80sq in the small bedrooms (I lived in a 40SQ with bay window =-=), and MANY MANY even over 1600SQ would not have a 80SQ bedroom and not to mention the kitchen layout is very nice with wide windows...and....100SQ balcony (can call it a Terrace and fits a 4 people table   n....1 floor 2 apartments....This is what I can call a 'luxury homes'!

IF I win a lottery (With this amount?)........this would be in one of my listed property!!!!

P.s time to have my dream.....
樂活人生...Even we are coming out to play and paying for the service, but..is always good to be a gentleman
回覆 讚好 不讚 使用道具

舉報

384

主題

4238

回帖

100

積分

初級會員

老,醜,矮,胖,光頭

積分
100
發表於 2012-6-26 22:55:29 | 顯示全部樓層
回復 nicholasnick #1 的帖子

30mm住翻新楼。。。。 我唔明D人点捻
囡囡報告,有一說一,有圖有真相!
回覆 讚好 不讚 使用道具

舉報

50

主題

672

回帖

100

積分

初級會員

積分
100
 樓主| 發表於 2012-6-27 01:11:44 | 顯示全部樓層
煩惱 發表於 2012-6-26 11:01
中咗 6 好彩 .... 刀要交管理費嘛 .... 一梯兩伙千幾呎 ... 相信刀 5 平 ....  ...

If is like last yr 72m then it wont a problem for u la ching

If is 2hkd per square, then it would be almost 4k a month =_=
樂活人生...Even we are coming out to play and paying for the service, but..is always good to be a gentleman
回覆 讚好 不讚 使用道具

舉報

50

主題

672

回帖

100

積分

初級會員

積分
100
 樓主| 發表於 2012-6-27 01:12:11 | 顯示全部樓層
煩惱 發表於 2012-6-26 11:01
中咗 6 好彩 .... 刀要交管理費嘛 .... 一梯兩伙千幾呎 ... 相信刀 5 平 ....  ...

If is like last yr 72m then it wont a problem for u la ching

If is 2hkd per square, then it would be almost 4k a month =_=
樂活人生...Even we are coming out to play and paying for the service, but..is always good to be a gentleman
回覆 讚好 不讚 使用道具

舉報

50

主題

672

回帖

100

積分

初級會員

積分
100
 樓主| 發表於 2012-6-27 01:18:49 | 顯示全部樓層
四川佬 發表於 2012-6-26 22:55
回復 nicholasnick #1 的帖子

30mm住翻新楼。。。。 我唔明D人点捻

Well c-hing not sure if u have look at properties around happy valley lei- if is a totally new build at 12 broadwood road- Hopewell is sellinh it for around 28k per square so 10k more. And it would have bay windows.

And for about 17k u will only be able to buy a about 15yr old building although their actual gross area can reach up to 90% but u will need to refurbish it before moving there.

So just very personal opinion i think 18k per sq to live at happy valley is good price unless u buy broadwood twelve.
樂活人生...Even we are coming out to play and paying for the service, but..is always good to be a gentleman
回覆 讚好 不讚 使用道具

舉報

您需要登錄後才可以回帖 登錄 | 註冊

本版積分規則

Archiver|聯絡我們|141華人社區

GMT+8, 2026-3-13 16:52

Powered by Discuz! X3.5

© 2001-2026 Discuz! Team.

快速回覆 返回頂部 返回列表