找回密碼
 註冊
查看: 5061|回覆: 89

轉載 : 紅磡新盤 200萬有找

 火..   [複製鏈接]
簽到
349

64

主題

2381

回帖

100

積分

初級會員

積分
100

論譠元老勳章

發表於 2012-2-23 13:57:19 | 顯示全部樓層 |閱讀模式
轉載 : 太陽報 紅磡新盤 200萬有找

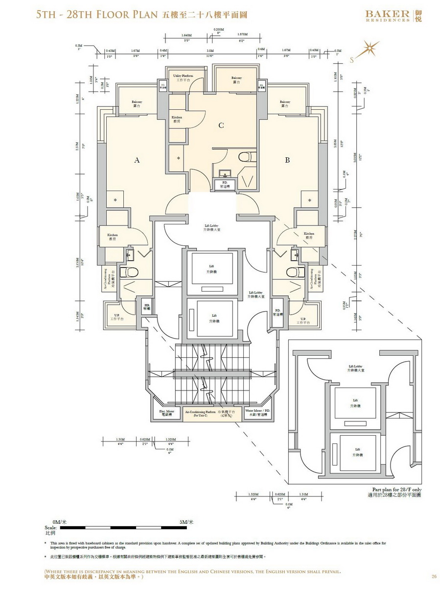
近年市區上車盤需求龐大,發展商積極開拓相關市場,紛紛推出「價細」迷你單位;信置(00083)旗下「清一色」為開放式細單位的紅磡御悅,標準戶面積最細僅272方呎,實用面積更只有185方呎,屬近年罕見的「迷你」新盤單位,入場費料有機會低於200萬元。消息稱,項目最快日內開價及下周二開售,意向呎價約7,000至8,000元。

信置營業部總經理田兆源表示,御悅的樓書昨日經已上網及派發,最快可於下周二開售。代理稱,信置昨中午起突然開放御悅現樓單位予代理預覽,接近傍晚開始接受代理帶客睇樓,估計最快本周四開價,入場費有機會低於200萬元,中低層單位平均售價料260萬至270萬元,極高層海景戶意向呎價料約8,000元。

-----------------------------------------------

272 呎.... ...似.套房多過似單位

D 發展商 發5到水....就 縮水 .....

198

主題

2萬

回帖

18萬

積分

星級會員

麻美ゆま

積分
182621

「處女座」勳章成家立室勳章141紳士勳章百萬富翁勳章高級元老勳章超級元老勳章傑出成就勳章萬千寵愛勳章論譠元老勳章「友誼大使」勳章究極元老勳章141榮譽勳章

發表於 2012-2-23 14:45:49 | 顯示全部樓層
仲衰過套房, 咁細仲搞埋d工作平台, 都痴x線既


御悅_調整大小.jpg
回覆 讚好 不讚 使用道具

舉報

263

主題

1萬

回帖

8萬

積分

星級會員

以得服人...因為我得你唔得

積分
80225

「痴線佬」勳章「天秤座」勳章「生活常識」勳章熱爆勳章勝利勳章141紳士勳章成家立室勳章百萬富翁勳章「友誼大使」勳章高級元老勳章傑出成就勳章超級元老勳章萬千寵愛勳章千億富豪勳章論譠元老勳章

發表於 2012-2-23 14:47:51 | 顯示全部樓層
entry1 發表於 2012-2-23 14:45
仲衰過套房, 咁細仲搞埋d工作平台, 都痴x線既

工作平台係發水其中一個原素嘛, 點可以少....  
岩傾就坐埋,唔岩就拜拜!
巧專業架!為左
顯出我係一位上進既會員,會替
解答所有問題,
使你能夠完全咁明白所有可能
略既地方!
回覆 讚好 不讚 使用道具

舉報

198

主題

2萬

回帖

18萬

積分

星級會員

麻美ゆま

積分
182621

「處女座」勳章成家立室勳章141紳士勳章百萬富翁勳章高級元老勳章超級元老勳章傑出成就勳章萬千寵愛勳章論譠元老勳章「友誼大使」勳章究極元老勳章141榮譽勳章

發表於 2012-2-23 14:51:10 | 顯示全部樓層
呀吓 發表於 2012-2-23 14:47
工作平台係發水其中一個原素嘛, 點可以少....

呢樣明白, 但比佢發完水都係咁細,

可以想像個"內龍"係點
回覆 讚好 不讚 使用道具

舉報

263

主題

1萬

回帖

8萬

積分

星級會員

以得服人...因為我得你唔得

積分
80225

「痴線佬」勳章「天秤座」勳章「生活常識」勳章熱爆勳章勝利勳章141紳士勳章成家立室勳章百萬富翁勳章「友誼大使」勳章高級元老勳章傑出成就勳章超級元老勳章萬千寵愛勳章千億富豪勳章論譠元老勳章

發表於 2012-2-23 14:59:27 | 顯示全部樓層
entry1 發表於 2012-2-23 14:51
呢樣明白, 但比佢發完水都係咁細,

可以想像個"內龍"係點

劏房一樣.......  

右手面第二度走火門方向有d怪..... 法例上應向逃生方向開...... 但依個反左方向....  
岩傾就坐埋,唔岩就拜拜!
巧專業架!為左
顯出我係一位上進既會員,會替
解答所有問題,
使你能夠完全咁明白所有可能
略既地方!
回覆 讚好 不讚 使用道具

舉報

64

主題

2381

回帖

100

積分

初級會員

積分
100

論譠元老勳章

 樓主| 發表於 2012-2-23 15:19:44 | 顯示全部樓層
本帖最後由 454 於 2012-2-23 15:20 編輯

行 家 令  甘Q細  駛 吾 駛 工作平台 又 窗台 ...來..扼$$$  .吖....
回覆 讚好 不讚 使用道具

舉報

198

主題

2萬

回帖

18萬

積分

星級會員

麻美ゆま

積分
182621

「處女座」勳章成家立室勳章141紳士勳章百萬富翁勳章高級元老勳章超級元老勳章傑出成就勳章萬千寵愛勳章論譠元老勳章「友誼大使」勳章究極元老勳章141榮譽勳章

發表於 2012-2-23 15:20:08 | 顯示全部樓層
呀吓 發表於 2012-2-23 14:59
劏房一樣.......  

右手面第二度走火門方向有d怪..... 法例上應向逃生方向開...... 但依個反左方 ...

圖方面呀吓兄真係pro
回覆 讚好 不讚 使用道具

舉報

263

主題

1萬

回帖

8萬

積分

星級會員

以得服人...因為我得你唔得

積分
80225

「痴線佬」勳章「天秤座」勳章「生活常識」勳章熱爆勳章勝利勳章141紳士勳章成家立室勳章百萬富翁勳章「友誼大使」勳章高級元老勳章傑出成就勳章超級元老勳章萬千寵愛勳章千億富豪勳章論譠元老勳章

發表於 2012-2-23 15:22:16 | 顯示全部樓層
454 發表於 2012-2-23 15:19
行 家 令  甘Q細  駛 吾 駛 工作平台 又 窗台 ...來..扼$$$  .吖....

斑發展商有得賺唔去賺咩?!
岩傾就坐埋,唔岩就拜拜!
巧專業架!為左
顯出我係一位上進既會員,會替
解答所有問題,
使你能夠完全咁明白所有可能
略既地方!
回覆 讚好 不讚 使用道具

舉報

64

主題

2381

回帖

100

積分

初級會員

積分
100

論譠元老勳章

 樓主| 發表於 2012-2-23 15:35:55 | 顯示全部樓層
呀吓 發表於 2012-2-23 15:22
斑發展商有得賺唔去賺咩?!

吾明 係....  點解 已規定吾可以發水 ,  但 点解 吾起得 實際D......>.
回覆 讚好 不讚 使用道具

舉報

263

主題

1萬

回帖

8萬

積分

星級會員

以得服人...因為我得你唔得

積分
80225

「痴線佬」勳章「天秤座」勳章「生活常識」勳章熱爆勳章勝利勳章141紳士勳章成家立室勳章百萬富翁勳章「友誼大使」勳章高級元老勳章傑出成就勳章超級元老勳章萬千寵愛勳章千億富豪勳章論譠元老勳章

發表於 2012-2-23 15:42:27 | 顯示全部樓層
454 發表於 2012-2-23 15:35
吾明 係....  點解 已規定吾可以發水 ,  但 点解 吾起得 實際D......>.

唔係規定唔可以發水, 而係規定左發水上限....
岩傾就坐埋,唔岩就拜拜!
巧專業架!為左
顯出我係一位上進既會員,會替
解答所有問題,
使你能夠完全咁明白所有可能
略既地方!
回覆 讚好 不讚 使用道具

舉報

2189

主題

4萬

回帖

24萬

積分

究極元老

人生就是充滿高低起跌才精彩

積分
243350

「玩具模型」勳章熱爆勳章百萬富翁勳章千億富豪勳章精華帖王勳章萬千寵愛勳章141榮譽勳章論譠元老勳章高級元老勳章超級元老勳章究極元老勳章「天蠍座」勳章傑出成就勳章「友誼大使」勳章「貼圖之星」勳章「戲劇之王」勳章「博學多才」勳章「體育精神」勳章「能言善辯」勳章「型男嗜好」勳章「動漫一族」勳章「音樂大師」勳章「數碼達人」勳章「141玩家」勳章「性愛專家」勳章「AV達人」勳章「攝影達人」勳章「創作大師」勳章「神州之星」勳章「遊藝專家」勳章「棋藝大師」勳章「玄機妙算」勳章「電腦大師」勳章「生活常識」勳章「演藝傳播」勳章「飲食健康」勳章「觀星入門」勳章「旅遊/航空」勳章「痴線佬」勳章特嗜章收藏家勳章「潮流時尚」勳章「單車交流」勳章「廣告/設計」勳章「爬山遠足」勳章「寶島之星」勳章「爆笑王」勳章「影音Hi-Fi」勳章「廚師食譜」勳章「資訊情報」分區勳章「資源分享」分區勳章「消閒興趣」分區勳章「會員交流」分區勳章「各行各業」分區勳章勝利勳章141紳士勳章成家立室勳章

發表於 2012-2-23 16:37:52 | 顯示全部樓層
454 發表於 2012-2-23 13:57
轉載 : 太陽報 紅磡新盤 200萬有找

近年市區上車盤需求龐大,發展商積極開拓相關市場,紛紛推出「價細」迷 ...

單身貴族來講都幾正~
又近市中心~
放蒲完帶個囡囡返去開餐十分方便~
強者之所以成為強者,是因為強人擅長戰勝自己的脆弱
回覆 讚好 不讚 使用道具

舉報

64

主題

2381

回帖

100

積分

初級會員

積分
100

論譠元老勳章

 樓主| 發表於 2012-2-23 17:22:14 | 顯示全部樓層
煩惱 發表於 2012-2-23 16:03
d 間格咁嘅 ? 放 5 到床架喎 ...

基本上... 1入屋 就上床....

高級炮房..........
回覆 讚好 不讚 使用道具

舉報

2189

主題

4萬

回帖

24萬

積分

究極元老

人生就是充滿高低起跌才精彩

積分
243350

「玩具模型」勳章熱爆勳章百萬富翁勳章千億富豪勳章精華帖王勳章萬千寵愛勳章141榮譽勳章論譠元老勳章高級元老勳章超級元老勳章究極元老勳章「天蠍座」勳章傑出成就勳章「友誼大使」勳章「貼圖之星」勳章「戲劇之王」勳章「博學多才」勳章「體育精神」勳章「能言善辯」勳章「型男嗜好」勳章「動漫一族」勳章「音樂大師」勳章「數碼達人」勳章「141玩家」勳章「性愛專家」勳章「AV達人」勳章「攝影達人」勳章「創作大師」勳章「神州之星」勳章「遊藝專家」勳章「棋藝大師」勳章「玄機妙算」勳章「電腦大師」勳章「生活常識」勳章「演藝傳播」勳章「飲食健康」勳章「觀星入門」勳章「旅遊/航空」勳章「痴線佬」勳章特嗜章收藏家勳章「潮流時尚」勳章「單車交流」勳章「廣告/設計」勳章「爬山遠足」勳章「寶島之星」勳章「爆笑王」勳章「影音Hi-Fi」勳章「廚師食譜」勳章「資訊情報」分區勳章「資源分享」分區勳章「消閒興趣」分區勳章「會員交流」分區勳章「各行各業」分區勳章勝利勳章141紳士勳章成家立室勳章

發表於 2012-2-23 17:32:41 | 顯示全部樓層
煩惱 發表於 2012-2-23 17:26
a/b 單位放張單人床都或者得 ... c 就 5 知點算 ...

整企身鏡, 對鏡推~
加多張梳化...
玩咩都夠啦...
強者之所以成為強者,是因為強人擅長戰勝自己的脆弱
回覆 讚好 不讚 使用道具

舉報

198

主題

2萬

回帖

18萬

積分

星級會員

麻美ゆま

積分
182621

「處女座」勳章成家立室勳章141紳士勳章百萬富翁勳章高級元老勳章超級元老勳章傑出成就勳章萬千寵愛勳章論譠元老勳章「友誼大使」勳章究極元老勳章141榮譽勳章

發表於 2012-2-23 17:34:25 | 顯示全部樓層
煩惱 發表於 2012-2-23 17:26
a/b 單位放張單人床都或者得 ... c 就 5 知點算 ...

床都唔駛上, 就地放張他他咪
回覆 讚好 不讚 使用道具

舉報

198

主題

2萬

回帖

18萬

積分

星級會員

麻美ゆま

積分
182621

「處女座」勳章成家立室勳章141紳士勳章百萬富翁勳章高級元老勳章超級元老勳章傑出成就勳章萬千寵愛勳章論譠元老勳章「友誼大使」勳章究極元老勳章141榮譽勳章

發表於 2012-2-23 17:38:55 | 顯示全部樓層
煩惱 發表於 2012-2-23 17:37
咁就可以 ... 不過 5 玩得花式囉 ... 樹關行多步已經係露台 ....

咁可以玩露出姐
回覆 讚好 不讚 使用道具

舉報

2189

主題

4萬

回帖

24萬

積分

究極元老

人生就是充滿高低起跌才精彩

積分
243350

「玩具模型」勳章熱爆勳章百萬富翁勳章千億富豪勳章精華帖王勳章萬千寵愛勳章141榮譽勳章論譠元老勳章高級元老勳章超級元老勳章究極元老勳章「天蠍座」勳章傑出成就勳章「友誼大使」勳章「貼圖之星」勳章「戲劇之王」勳章「博學多才」勳章「體育精神」勳章「能言善辯」勳章「型男嗜好」勳章「動漫一族」勳章「音樂大師」勳章「數碼達人」勳章「141玩家」勳章「性愛專家」勳章「AV達人」勳章「攝影達人」勳章「創作大師」勳章「神州之星」勳章「遊藝專家」勳章「棋藝大師」勳章「玄機妙算」勳章「電腦大師」勳章「生活常識」勳章「演藝傳播」勳章「飲食健康」勳章「觀星入門」勳章「旅遊/航空」勳章「痴線佬」勳章特嗜章收藏家勳章「潮流時尚」勳章「單車交流」勳章「廣告/設計」勳章「爬山遠足」勳章「寶島之星」勳章「爆笑王」勳章「影音Hi-Fi」勳章「廚師食譜」勳章「資訊情報」分區勳章「資源分享」分區勳章「消閒興趣」分區勳章「會員交流」分區勳章「各行各業」分區勳章勝利勳章141紳士勳章成家立室勳章

發表於 2012-2-23 17:39:27 | 顯示全部樓層
煩惱 發表於 2012-2-23 17:34
你有冇睇清楚張 floor plan 呀 ?

雙人床刀放 5 落仲整多張 sofa ?

就係唔放床...淨放梳化...
強者之所以成為強者,是因為強人擅長戰勝自己的脆弱
回覆 讚好 不讚 使用道具

舉報

198

主題

2萬

回帖

18萬

積分

星級會員

麻美ゆま

積分
182621

「處女座」勳章成家立室勳章141紳士勳章百萬富翁勳章高級元老勳章超級元老勳章傑出成就勳章萬千寵愛勳章論譠元老勳章「友誼大使」勳章究極元老勳章141榮譽勳章

發表於 2012-2-23 17:42:21 | 顯示全部樓層
煩惱 發表於 2012-2-23 17:39
咩叫 " 露出 " ???

企出露台玩呀
回覆 讚好 不讚 使用道具

舉報

198

主題

2萬

回帖

18萬

積分

星級會員

麻美ゆま

積分
182621

「處女座」勳章成家立室勳章141紳士勳章百萬富翁勳章高級元老勳章超級元老勳章傑出成就勳章萬千寵愛勳章論譠元老勳章「友誼大使」勳章究極元老勳章141榮譽勳章

發表於 2012-2-23 17:47:32 | 顯示全部樓層
煩惱 發表於 2012-2-23 17:43
會比淫報警拉你架 ...

私人地方, 我告你偷窺就真
回覆 讚好 不讚 使用道具

舉報

2189

主題

4萬

回帖

24萬

積分

究極元老

人生就是充滿高低起跌才精彩

積分
243350

「玩具模型」勳章熱爆勳章百萬富翁勳章千億富豪勳章精華帖王勳章萬千寵愛勳章141榮譽勳章論譠元老勳章高級元老勳章超級元老勳章究極元老勳章「天蠍座」勳章傑出成就勳章「友誼大使」勳章「貼圖之星」勳章「戲劇之王」勳章「博學多才」勳章「體育精神」勳章「能言善辯」勳章「型男嗜好」勳章「動漫一族」勳章「音樂大師」勳章「數碼達人」勳章「141玩家」勳章「性愛專家」勳章「AV達人」勳章「攝影達人」勳章「創作大師」勳章「神州之星」勳章「遊藝專家」勳章「棋藝大師」勳章「玄機妙算」勳章「電腦大師」勳章「生活常識」勳章「演藝傳播」勳章「飲食健康」勳章「觀星入門」勳章「旅遊/航空」勳章「痴線佬」勳章特嗜章收藏家勳章「潮流時尚」勳章「單車交流」勳章「廣告/設計」勳章「爬山遠足」勳章「寶島之星」勳章「爆笑王」勳章「影音Hi-Fi」勳章「廚師食譜」勳章「資訊情報」分區勳章「資源分享」分區勳章「消閒興趣」分區勳章「會員交流」分區勳章「各行各業」分區勳章勝利勳章141紳士勳章成家立室勳章

發表於 2012-2-23 17:49:19 | 顯示全部樓層
煩惱 發表於 2012-2-23 17:40
咁就得 ... 但冇女果陣點算呀 ? 連電視櫃刀放 5 到喎 ...

點會無女...
強者之所以成為強者,是因為強人擅長戰勝自己的脆弱
回覆 讚好 不讚 使用道具

舉報

2189

主題

4萬

回帖

24萬

積分

究極元老

人生就是充滿高低起跌才精彩

積分
243350

「玩具模型」勳章熱爆勳章百萬富翁勳章千億富豪勳章精華帖王勳章萬千寵愛勳章141榮譽勳章論譠元老勳章高級元老勳章超級元老勳章究極元老勳章「天蠍座」勳章傑出成就勳章「友誼大使」勳章「貼圖之星」勳章「戲劇之王」勳章「博學多才」勳章「體育精神」勳章「能言善辯」勳章「型男嗜好」勳章「動漫一族」勳章「音樂大師」勳章「數碼達人」勳章「141玩家」勳章「性愛專家」勳章「AV達人」勳章「攝影達人」勳章「創作大師」勳章「神州之星」勳章「遊藝專家」勳章「棋藝大師」勳章「玄機妙算」勳章「電腦大師」勳章「生活常識」勳章「演藝傳播」勳章「飲食健康」勳章「觀星入門」勳章「旅遊/航空」勳章「痴線佬」勳章特嗜章收藏家勳章「潮流時尚」勳章「單車交流」勳章「廣告/設計」勳章「爬山遠足」勳章「寶島之星」勳章「爆笑王」勳章「影音Hi-Fi」勳章「廚師食譜」勳章「資訊情報」分區勳章「資源分享」分區勳章「消閒興趣」分區勳章「會員交流」分區勳章「各行各業」分區勳章勝利勳章141紳士勳章成家立室勳章

發表於 2012-2-23 17:58:17 | 顯示全部樓層
煩惱 發表於 2012-2-23 17:56
吓 ...  一定有架 ?

比我又單身又住紅磡呢D 私家小豪宅~
真係除非自己唔想郁...
我應該夜夜笙歌了~
強者之所以成為強者,是因為強人擅長戰勝自己的脆弱
回覆 讚好 不讚 使用道具

舉報

您需要登錄後才可以回帖 登錄 | 註冊

本版積分規則

Archiver|聯絡我們|141華人社區

GMT+8, 2026-3-13 09:25

Powered by Discuz! X3.5

© 2001-2026 Discuz! Team.

快速回覆 返回頂部 返回列表