找回密碼
 註冊
查看: 11663|回覆: 85

[擴音機/組合] DIY 單端300B

   火...   [複製鏈接]
簽到
870

15

主題

2353

回帖

1萬

積分

超級元老

積分
11452
發表於 2016-2-18 11:29:14 | 顯示全部樓層 |閱讀模式
今次講關於我diy的胆機,自己的第一部胆機是diy胆前級,而今日為大家寫的是我的第二部diy胆機作品,單端300B. 之前所post的diy音頻訊號線是在2013年中完成的,之後不斷在那數字網站找資料,找到一些做喇叭線的文章,很想用cat5線織一條喇叭線,但看到很多師兄花很多時間,搞到我有些怕怕,便去了搞胆機.

300b正面.jpg
額定輸出功率: 7W
整機頻响:25Hz-32kHz
諧波失真:1%
信噪比:88dB
套件價佫:人仔1200(不包胆,包胆加多一千左右)

這是該網站的圖及它的參數,我就不把自家的成品圖貼出來,希望大家也明白當中原因.當然我會露底,正所謂露底唔怕蝕底,把成品機底部的接線圖貼上. 這部機我在2014年4月時已搞好,但去年初把火牛也換了,所以會看到下圖的火牛會跟之前的相片有些不同.
whole1 (640x480).jpg

事前準備
1)當然上網去看其它師兄的作品,然後知道有些線要雙絞而行,但最重要的是一點到地,即每個胆的腳如何接地,大家也知,當cd機不運作,開着部胆機,也會聽到胡胡聲,而接地好不好,胡胡聲有幾大和它有很大的關係.
2)工具,其實我只有電流表及其它焊接的工具,所以到最後的測試,可以講無,什麼視波器,無錢買,所以到最後它的THD是多少,不知道
3)電壓biasing.拜讀以下書,知道了biasing對三極管的重要性,如何把它當做放大器,或將它當作為一個開關,這些全部也和biasing有關.
valve amplifier.jpg

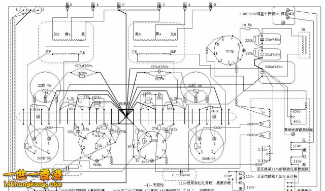
首先佢的線路圖如下,好像很難明白,其實如果把它分成兩部份,便比較易理解.
circuit diagram 1.jpg

黃色部份是交流變直流,其餘的部份便是真空管的運作,那為何要轉成直流,答案是biasing.因真空管要工作,必需要有直流電壓給它,那便可以控制它是做放大器,開關或其它用途.三極管的operating point在那,全看biasing voltage.

再看一下佢的材料,一分錢一分貨,有些料真的很流,所以我另外買了些電容,接線柱等回來. 便是要把這些零件焊在機箱裏.
300b4.jpg

接線圖如下,其實佢最好的是有接線圖,可以令我這個外行人也可以照圖焊接,不過,佢只是參考,因接之前我已花了些時間在佈局中.
wiring diagram (640x376).jpg

花了三個星期才把一半的零件焊好,當然所謂的三個星期,其實每天都只用兩個鐘做,但自己也真的做得太慢了.紅色圏住的是所謂的搭棚方式,即各零件的腳接在一起,不用任何銅綫連接,但它做不到全部也用搭棚方式,因綫路太多,所以中間也有一條直的接綫橋,就是能搭棚便搭棚.
midhalf.jpg

midhalf1_搭棚.jpg

有時真的想放棄,但去到一半,只好繼續,幸好下一半因只是copy過去,所以下一半很快完成.可以看到,火牛已換了,現在已經不是用這個火牛.
complete.jpg

測試
反覆看清楚線路接點是否正確,因沒有視波器,所以純粹check一些電壓位置,我都覺得好除便,其實之前已在同一店買了佢另一個簡單的前級,做好後開機一試是ok,所以今次才買佢的單端300B玩下,那我好自然也相信佢的線路無問題.什麼THD對我也只是數字而已,還是信自己的耳好過.
把所有野接好,當然是把cd,及喇叭也接上,當時開機一試,有些擔心會爆炸,好彩一開機便成功.但當時覺得聲音有些刺耳,定位亂七八糟.甘再煲下佢,定位還是很亂,根本左右位置亂晒,check了下訊號線及喇叭線有無駁錯,又無.頂佢唔住下,便把那原本隨機來的綠色油浸電容換掉,換上另外買的audio note油浸電容.
cap.jpg
circuit_cap.jpg
以上線路圖紅圈的那個電容便是audio note的位置,把前面的訊號放進300B的入口,可以話它控制了出來的聲音效果.

之後當然開聲一試,不得了,這便是真正的300B,正,聲音暖,定位正確.那我便用以下3首歌來試下佢,(以下如果說比較的話,是同我另一部馬仔比較)

1)Susan Wong Goodnight
以上影片乃youtube提供,與本站無關; 若無法觀看,可查看原網址

今次用 Susan Wong sacd someone like you 碟內的 goodnight,聲音夠暖,好嗲,直頭想抱下佢,當去到差不多最後佢唱出....we only say goodnight 的 goodnight時,就好像有個人企在前面唱出來,因有道氣好像噴向面一樣,300B果然厲害.

2)Yanni  Playtime
以上影片乃youtube提供,與本站無關; 若無法觀看,可查看原網址

跟住用yanni live的cd 試下純音樂如何.其實我十分喜歡佢的音樂,用左佢的現場版本,鋼琴彈子間的反應干淨,表現其實同我部馬仔差不多,分離度不錯,也由於我的並不是神耳,所以聽不出兩者之間有何差別,大家的分析力也差不多,動感依然.

3)花之圓舞曲
以上影片乃youtube提供,與本站無關; 若無法觀看,可查看原網址

hi end 的朋友應該開心,因我的兩部入門機去到最後所有欒器突然由低轉向高時,兩部野都頂唔住,分析得不清楚,層次欠奉,樂器一舊舊,而且力水也不夠,所以話,hi end便是hi end,有時便是要用錢買回來的.
之後我便接上之前講過自己已做過的胆前級駁上,力水便足夠,但分析力還是唔掂,層次還是欠奉.

用後感想
若然有制作能力的師兄,可以買料後直接按電路圖做出來,因後來套件中很多料我也換了.一分錢,一分貨,對佢的用料不足是當然的,最令我不快的是用膠貼膠帶把電容固定,如果它能把電容用鏍絲固定下來更好,另外火牛還是預大一些功率,因去年初我把原本的火牛也換了.

有3個部件相信會直接影響出來的聲音效果,1)decoupling capacitor 油浸電容,2)輸出變壓器,3)換胆,相信不久我會把那輸出變壓器也換走,因我已買了對輸出變壓器,只是自己懶,不想動手鑽孔然後把它裝上.現在用緊湖南某廠的胆,所以還可以換更好的胆,至於那油浸電容,可以用出名的Jensen銀箔油浸電容,但一萬多元一顆,買完食定樹皮.

相信大家現在知道我只是平玩音響的人,去了幾次8月的影音展,大草的費話很多 ,但他最用肺講出來的至理名句,我是銘記在心,那裏的音響最好,答案永遠是家裏那部 .而我到現在為止,最喜歡聽的音樂便是女女在我耳邊唱出環迴立體聲 ,一聽令我精神爽利,越幹越起勁,愈戰愈勇 .
講笑,誰不想有錢買hi end 音響回家,有時必需認財力不夠,總之平有平玩,貴有貴玩,一齊聽歌relax下,好了,多謝各位的觀賞.


討論

感謝師兄 DIY 包膠!發表於 2016-2-18 12:30

15

主題

2353

回帖

1萬

積分

超級元老

積分
11452
 樓主| 發表於 2016-2-18 11:30:08 | 顯示全部樓層
再次,多謝兩位版主的支持
回覆 讚好 不讚 使用道具

舉報

637

主題

4萬

回帖

19萬

積分

141正式版主

戰地記者

積分
199135

「潮流時尚」勳章「射手座」勳章百萬富翁勳章萬千寵愛勳章論譠元老勳章高級元老勳章超級元老勳章傑出成就勳章「友誼大使」勳章「神州之星」勳章「影音Hi-Fi」勳章版主勳章群組紀念勳章成家立室勳章究極元老勳章精華帖王勳章百萬富翁勳章141榮譽勳章

發表於 2016-2-18 11:49:20 | 顯示全部樓層
happylife 發表於 2016-2-18 11:30
再次,多謝兩位版主的支持

有自家成品相嗎?
回覆 讚好 不讚 使用道具

舉報

發表於 2016-2-18 11:56:22 | 顯示全部樓層
柒喜 發表於 2016-2-18 11:49
有自家成品相嗎?

版主係指呢部胆機以外嘅其他 DIY 傑作 ?  

1.jpg
回覆 讚好 不讚 使用道具

舉報

637

主題

4萬

回帖

19萬

積分

141正式版主

戰地記者

積分
199135

「潮流時尚」勳章「射手座」勳章百萬富翁勳章萬千寵愛勳章論譠元老勳章高級元老勳章超級元老勳章傑出成就勳章「友誼大使」勳章「神州之星」勳章「影音Hi-Fi」勳章版主勳章群組紀念勳章成家立室勳章究極元老勳章精華帖王勳章百萬富翁勳章141榮譽勳章

發表於 2016-2-18 12:00:07 | 顯示全部樓層
hkwatcher 發表於 2016-2-18 11:56
版主係指呢部胆機以外嘅其他 DIY 傑作 ?

樓主自己已說明相不是他自己的成品
回覆 讚好 不讚 使用道具

舉報

發表於 2016-2-18 12:00:11 | 顯示全部樓層
回復 happylife #1 的帖子

happylife 師兄要多啲上嚟同大家分享下玩機心得囉 !   
回覆 讚好 不讚 使用道具

舉報

58

主題

1萬

回帖

7萬

積分

141正式版主

心血小矛嚇禾

積分
73207

傑出成就勳章百萬富翁勳章萬千寵愛勳章論譠元老勳章高級元老勳章超級元老勳章「雙魚座」勳章「友誼大使」勳章「影音Hi-Fi」勳章版主勳章

發表於 2016-2-18 12:08:22 | 顯示全部樓層
"黃色部份是交流變直流,其餘的部份便是真空管的運作,那為何要轉成直流,答案是biasing"
呢句有問題....點止 Bias 咁簡單? 呢個唔係師兄問題, 乃刀係睇資料姐..
Q Point 亦無得選擇...單春蛋治, 要 360 度.
配喇叭亦是問題, 本身高噪音, 低輸出, 師兄推乜喇叭?
回覆 讚好 不讚 使用道具

舉報

290

主題

1萬

回帖

8萬

積分

超級元老

積分
85240

「友誼大使」勳章超級元老勳章高級元老勳章論譠元老勳章百萬富翁勳章萬千寵愛勳章究極元老勳章

發表於 2016-2-18 12:15:10 | 顯示全部樓層
又好抵玩喎!
回覆 讚好 不讚 使用道具

舉報

發表於 2016-2-18 12:38:46 | 顯示全部樓層
我都學下玩胆機
回覆 讚好 不讚 使用道具

舉報

206

主題

1萬

回帖

7萬

積分

超級元老

積分
75493
發表於 2016-2-18 12:55:19 | 顯示全部樓層
搭棚機沒試過 PCB倒是鑽過洗過
仿 ESS 250線路 沒裝機箱  單聲道放餅干盒上
燒了好幾回才會唱歌 青澀歲月
回覆 讚好 不讚 使用道具

舉報

發表於 2016-2-18 12:56:33 | 顯示全部樓層
DIY , 夠心機
回覆 讚好 不讚 使用道具

舉報

58

主題

1萬

回帖

7萬

積分

141正式版主

心血小矛嚇禾

積分
73207

傑出成就勳章百萬富翁勳章萬千寵愛勳章論譠元老勳章高級元老勳章超級元老勳章「雙魚座」勳章「友誼大使」勳章「影音Hi-Fi」勳章版主勳章

發表於 2016-2-18 13:08:33 | 顯示全部樓層
BB29 發表於 2016-2-18 12:38
我都學下玩胆機

膽機非常簡單, 成功率高, 玩得過..
回覆 讚好 不讚 使用道具

舉報

178

主題

1萬

回帖

4萬

積分

超級元老

good reader

積分
46965

「友誼大使」勳章百萬富翁勳章論譠元老勳章高級元老勳章超級元老勳章傑出成就勳章萬千寵愛勳章

發表於 2016-2-18 13:54:29 | 顯示全部樓層
回復 happylife #1 的帖子

真的很专业 有时间时也学习下
回覆 讚好 不讚 使用道具

舉報

58

主題

1萬

回帖

7萬

積分

141正式版主

心血小矛嚇禾

積分
73207

傑出成就勳章百萬富翁勳章萬千寵愛勳章論譠元老勳章高級元老勳章超級元老勳章「雙魚座」勳章「友誼大使」勳章「影音Hi-Fi」勳章版主勳章

發表於 2016-2-18 14:00:24 | 顯示全部樓層
happylife 發表於 2016-2-18 11:30
再次,多謝兩位版主的支持

勤刀D....巧快升呢...
回覆 讚好 不讚 使用道具

舉報

58

主題

1萬

回帖

7萬

積分

141正式版主

心血小矛嚇禾

積分
73207

傑出成就勳章百萬富翁勳章萬千寵愛勳章論譠元老勳章高級元老勳章超級元老勳章「雙魚座」勳章「友誼大使」勳章「影音Hi-Fi」勳章版主勳章

發表於 2016-2-18 14:12:19 | 顯示全部樓層
happylife 發表於 2016-2-18 11:29
今次講關於我diy的胆機,自己的第一部胆機是diy胆前級,而今日為大家寫的是我的第二部diy胆機作品,單端300B.  ...


decoupling capacitor .22uf 400V
呢個係 Coupling Capacitor (交連電容), 响呢種線佢非常重要, 用佢令設計非常容易, 每一級獨立工作, 唔會受外界影响, 會嚴重影响音質 (對發燒友), 所以選料異常重要.
石機多用 Direct Coupling, 設計難度比胆機高巧多.
小弟唔多察覺有負回輸, 相信失真頗高, 相對D聲亦較生動, 活潑...
回覆 讚好 不讚 使用道具

舉報

0

主題

4萬

回帖

11萬

積分

究極元老

積分
115020

百萬富翁勳章「友誼大使」勳章高級元老勳章超級元老勳章傑出成就勳章萬千寵愛勳章論譠元老勳章究極元老勳章141榮譽勳章

發表於 2016-2-18 14:12:27 | 顯示全部樓層
DIY....
回覆 讚好 不讚 使用道具

舉報

發表於 2016-2-18 14:13:02 | 顯示全部樓層
300B 淘宝賣 ¥860.00
回覆 讚好 不讚 使用道具

舉報

202

主題

5萬

回帖

25萬

積分

究極元老

屠殺日本狗

積分
257773

論譠元老勳章高級元老勳章萬千寵愛勳章傑出成就勳章超級元老勳章百萬富翁勳章究極元老勳章141榮譽勳章

發表於 2016-2-18 14:17:10 | 顯示全部樓層
too much work!   
回覆 讚好 不讚 使用道具

舉報

發表於 2016-2-18 14:18:43 | 顯示全部樓層
DIY 胆機
回覆 讚好 不讚 使用道具

舉報

發表於 2016-2-18 14:40:37 | 顯示全部樓層
睇落好複雜
回覆 讚好 不讚 使用道具

舉報

您需要登錄後才可以回帖 登錄 | 註冊

本版積分規則

Archiver|聯絡我們|141華人社區

GMT+8, 2025-12-17 12:48

Powered by Discuz! X3.5

© 2001-2025 Discuz! Team.

快速回覆 返回頂部 返回列表